Centro - Edificio Flia, Deptos en Pozo. Como vivir en una Casa, pero en un Departamento
$110000 USD
Vivir en familia es vivir en casa, y esos buscamos con este proyecto. Que te sientas en casa.
Por eso repensamos la tipología tradicional del depto y le agregamos la calidez, comodidad,, y espacios propios de una casa..
Conoce flia
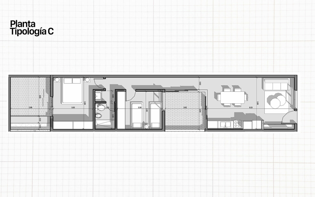
4 tipologías para que se adapten a tus necesidades:
- Tipología A: 2 dormitorios, patio, cochera. 69m2 + 15m2 patio
- Tipología B: 2 dormitorios, patio cochera, 66m2 + 14m2 patio
- Tipología C: 2 dormitorios, 2 patios, cochera. 60m2 + 21m2 patios
- Tipología D: 1 dormitorio, patio, cochera. 51m2 + 14m2 patio (valor publicado)
Equipamiento:
Caldera dual, radiadores, artefactos de iluminación, alacenas y bajomesada, Artefacto de cocina o anafe + horno. Placares con interiores.
Amenities
Ascensor
Espacios comunes al aire libre
Pileta + solarium en terraza
Espacio para lavado de autos
Area para guardado de bicicletas
Espacio de fuego para reunirse o cocinar
Quincho con asador + coworking
Apto mascotas - Gas Natural
Entrega 70% + 6 cuotas. Entrega Junio 2023.
Pocas unidades quedan ya..., no dejes de pertenecer al selecto grupo de quienes eligieron una forma de vida distinta.
Escribinos para + info.!
Somos Cortinez Lourenço Consultora Inmobiliaria - CPI 5118

